00191504-01.pdf - 第57页
Használ ati utasí tás a SIPLAC E 80S-20/F4 /F4-6/F5 tipushoz 1 Üzembi ztons ág 98/03-as kiadás az SR.40 4.xx szoftverv erziótól 1.2 Bizto nsági berendez ések 1-15 %HQ\ ~OiVLYpGHOHP DEHNL DGyV] DODJQiO 9(6=e/…

1 Üzembiztonság Használati utasítás a SIPLACE 80S-20/F4/F4-6/F5 tipushoz
1.2 Biztonsági berendezések 98/03-as kiadás az SR.404.xx szoftververziótól
1-14
ÈOWDOiQRVPHJMHJ\]pVHN
A portálok mozgási területét két védõtetõvel fedtük le. Amennyiben ki kívánjuk nyitni a védõtetõt,
akkor elõször a megállító gombot, vagy a VÉSZ-KI gombot kell megnyomni (1. pozíció az 1.2.2
ábrán, ill. a 2. pozíció az 1.2.2 ábrán).
A portál tengelyek ilyenkor nem kapnak több erõátvitelt és azonnal leállnak.
Amennyiben kinyitjuk az egyik védõtetõt, vagy fedélt a fogadó, ill. kiadó továbbításnál, akkor a
portál tengelyek nem kapnak több erõátvitelt. Ilyenkor azonnal leállnak.
Zárt kulcskapcsolónál (1 állás) nyitott védõtetõ nélkül a csillagot csökkentett sebességgel tovább
ütemezhetjük.
A VÉSZ-KI kapcsoló mûködtetésekor a beültetés leáll. Ezután a nyáklap beültetését megszakíthat-
juk, vagy folytathatjuk. Az oldalsó védõtárcsák a gép leállásakor kinyithatóak az elemek (chippel)
utántöltése céljából.
),*<(/0(=7(7e6
Csak megfelelõen kvalifikált és képzett személyzet nyithatja ki a védõtetõt lezárt kulcskapcsoló es-
etében (1 állás).
iEUD/HiOOtWypV9e6=.,NDSFVROy
0DJ\DUi]DWD]iEUiKR]
1 Leállító kapcsoló 2 VÉSZ-KI kapcsoló

Használati utasítás a SIPLACE 80S-20/F4/F4-6/F5 tipushoz 1 Üzembiztonság
98/03-as kiadás az SR.404.xx szoftververziótól 1.2 Biztonsági berendezések
1-15
%HQ\ ~OiVLYpGHOHPDEHNLDGyV]DODJQiO
9(6=e/<
A hozzáférési védelmet mindig az éppen megmunkálás alatt lévõ nyáklap magasságába kell
beállítani. Ügyelni kell arra, hogy a hozzáférési védelem és a védõléc között a lehetõ legkisebb üres
tér maradjon.
A hozzáférési védelmet a nyáklap továbbító fogadó- és kiadó szalagjára szereltük fel.
A hozzáférési védelem magasságát a hosszanti lyukaknál úgy állítsuk be, hogy a megmunkált
nyáklap tovább szállítható legyen.
iEUD +R]]iIpUpVLYpGHOHPD6,3/$&(6)))DXWRPDWiQiO
0DJ\DUi]DWD]iEUiKR]
1 Védõlánc (rögzített felszerelés)
2 Hozzáférési védelem (állítható)
3 Hosszanti lyukak a magasság beállítására
4 Fedél

1 Üzembiztonság Használati utasítás a SIPLACE 80S-20/F4/F4-6/F5 tipushoz
1.2 Biztonsági berendezések 98/03-as kiadás az SR.404.xx szoftververziótól
1-16
9e6=.,NDSFVROyY pG}WHW}NDSFVROypVNXOFVNDSFVROy
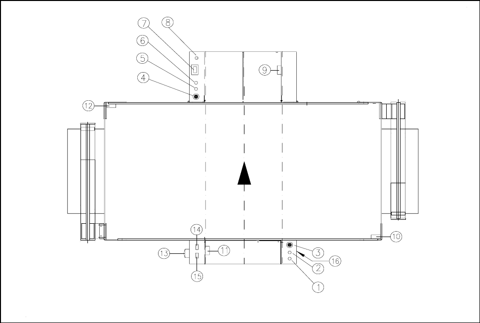
iEUD $NDSFVROyNpVDYpGHOHPUHV]ROJiOyEL]WRQViJLNRPELQiFLyN..EHpStWpVLKHO\HL
0DJ\DUi]DWD]iEUiKR]
1 Leállító kapcsoló
2 Indító kapcsoló
3 Vész-Ki kapcsoló
4 Vész-Ki kapcsoló
5 Indító kapcsoló
6 Leállító kapcsoló
7 Elem (chip) számláló
8 Kulcskapcsoló nyitva: 0 állás a normál üzem számára
zárva: I állás a szervizelés céljára
9 Védõtetõ kapcsoló (kiadó továbbító, 00303617-xx)
10 Védõtetõ kapcsoló (jobboldali 00321417-xx)
11 Védõtetõ kapcsoló (fogadó továbbító, 00303614-xx)
12 Védõtetõ kapcsoló (baloldali, 00321416-xx)
13 Fõkapcsoló
14 Védelemre szolgáló biztonsági kombináció K1
15 Védelemre szolgáló biztonsági kombináció K2
16 Sûrített levegõ egység