00191504-01.pdf - 第679页
Használ ati utasí tás a SIPLAC E 80S-20/F4 /F4-6/F5 tipushoz 1 1 Állomás b õ vítés ek/opci ók 98/03-as kiadás az SR.40 4.xx sz oftververz iótól 1 1.10 Kettõs tová bbítás 11-7 7 iEUD 7 HOMH ViWWHNLQWpVD6,3 /$&…
11 Állomás bõvítések/opciók Használati utasítás a SIPLACE 80S-20/F4/F4-6/F5 tipushoz
11.10 Kettõs továbbítás 98/03-as kiadás az SR.404.xx szoftververziótól
11-76
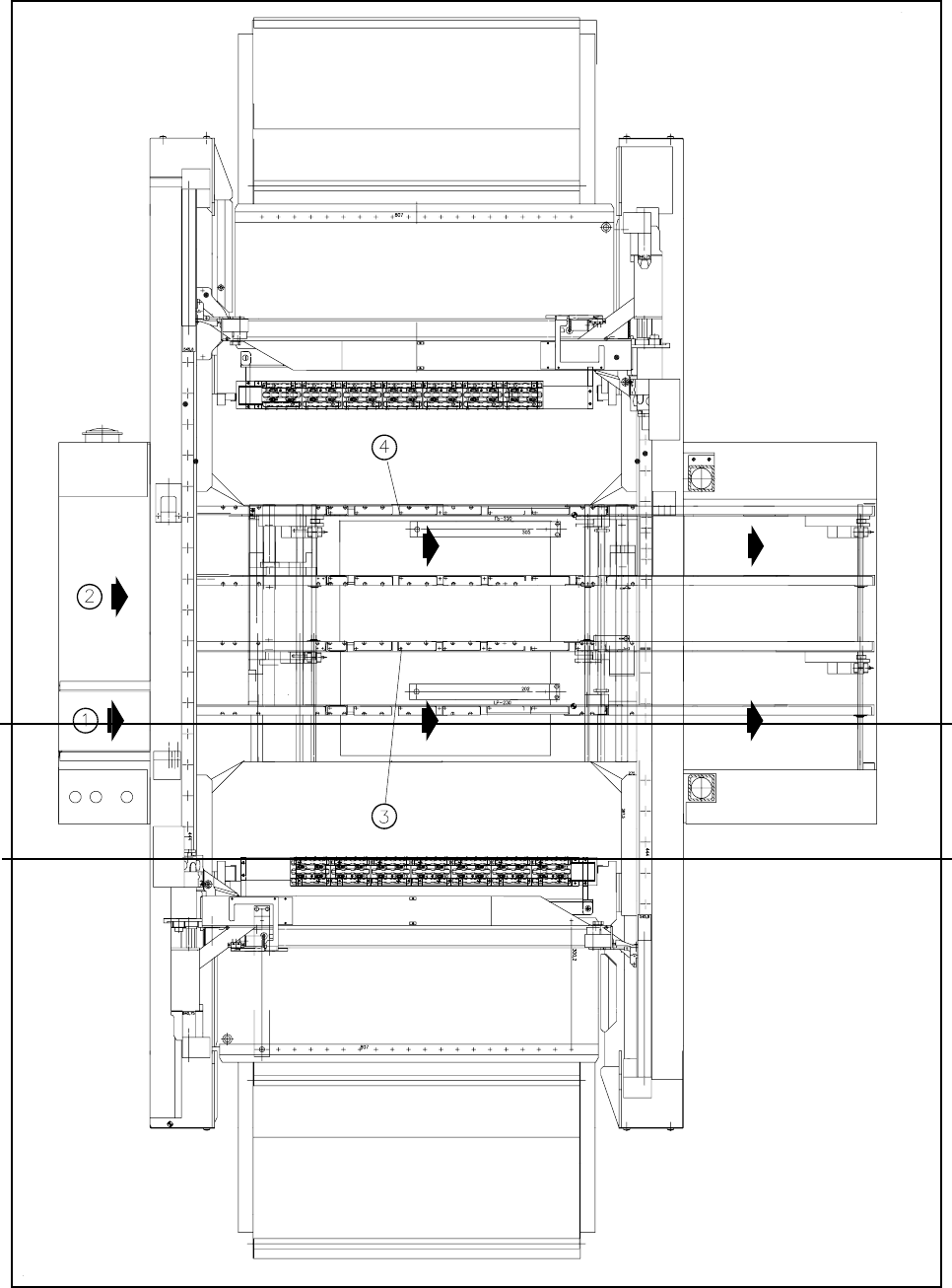
- Magyarázat a 11.10.1 ábrához
1 1 Továbbító sáv 2 2 Továbbító sáv
3 Rögzített szállító oldal 1 szállítósáv 4 Rögzített szállító oldal 2 szállítósáv
ÈWWHNLQWpVEDOROGDOLU|J]tWpV
A jobboldali továbbító sávban történõ irányt “1 Továbbításnak” jelöljük, a baloldali továbbítási
sávban a szállítást pedig “2 Továbbításnak” jelöljük. Lásd a 11.10.2 ábrát.

Használati utasítás a SIPLACE 80S-20/F4/F4-6/F5 tipushoz 11 Állomás bõvítések/opciók
98/03-as kiadás az SR.404.xx szoftververziótól 11.10 Kettõs továbbítás
11-77
iEUD 7HOMHViWWHNLQWpVD6,3/$&(NHWW}VWRYiEEtWiViUyOEDOROGDOLROGDOU|J]tWYH

11 Állomás bõvítések/opciók Használati utasítás a SIPLACE 80S-20/F4/F4-6/F5 tipushoz
11.10 Kettõs továbbítás 98/03-as kiadás az SR.404.xx szoftververziótól
11-78
0DJ\DUi]DWDiEUiKR]
1 1 Továbbító sáv 2 2 Továbbító sáv
3 Rögzített szállító oldal 1 szállítósáv 4 Rögzített szállító oldal 2 szállítósáv
7RYiEEtWiVPyGMDDV]LQNURQ
/HtUiV
Az aszinkron üzemben mindig egy nyáklap kerül egy továbbító sávban beültetésre, míg a
másik nyáklap a második szállítósávban beültetõ pozícióba kerül. Ezzel meg lehet takarítani
a teljes szállítási idõt, amely különösen az alacsony ütemidejû nyáklapok esetében jelentõs
teljesítmény növeléshez vezet.
)XQNFLy
Amennyiben a gép kapott feladattal kapcsolatos adatokat (Alkalmazás, Felszerszámozás),
akkor a beültetési üzem minden idõpontjában a beadó szalagon várakozó nyáklapok a min-
denkori középsõ szalagra kerülnek (amennyiben a középsõ szalag szabad). A beültetés me-
nete akkor kezdõdik, mihelyst egy nyáklap a mindenkori középsõ szalagra kerül. A
nyáklapok egymás után kerülnek beültetésre.
87$/È6
A beültetés tartalmának, valamint a nyáklapok szélességének az 1 szállítósávban és a 2
szállítósávban azonosnak kell lennie.
Amennyiben a beültetés menete megszakításra kerül, a szállítás metszéspontja lezár és a
nyáklapok, amelyek ekkor a szalag középsõ részén vannak, a beültetés szempontjából még
befejezésre kerülnek.
A szállítási metszéspont mindkét szállítósávban egyidejûleg kerül lezárásra, ill. felsza-
badításra.
7RYiEEtWiVPyGMDV]LQNURQ
/HtUiV
A szinkron üzemben két nyáklap azonos nagyságban egyidejûleg kerül a beültetõ pozícióba
és közösen kerülnek megmunkálásra.
Ezzel a nyáklapok felsõ és alsó oldalának a megmunkálása egy sorban lehetséges. Az idõ,
amely a nyáklap továbbításra esik, csökken, mert mindig két nyáklap egyszerre kerül továb-
bításra.