S 20 Series Maintenance I.pdf - 第72页
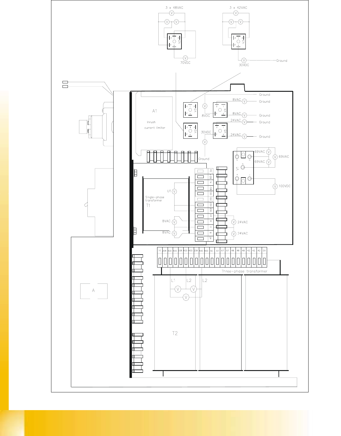
2000 年 6 月版 S 20 系列维修培训指南 I 2 综述 14 Fig. 2.4.3 电源装置的 侧 视图 - 变压器和继电器

S 20 系列维修培训指南 I 2000 年 6 月版
2 综述
13
2.4.4
2.4.42.4.4
2.4.4 变压器和整流器上的供电电压
变压器和整流器上的供电电压变压器和整流器上的供电电压
变压器和整流器上的供电电压
变压器 T1和T2, 继电器 V1-V5 以及冲击电流限制器 A1位于电源装置的侧面
(
见
Fig. 2.4.3).
注意
详细测量或确定电源装置的的故障 位置时 应参阅相关的电路图

2000 年 6 月版 S 20 系列维修培训指南 I
2 综述
14
Fig. 2.4.3 电源装置的侧视图 - 变压器和继电器

S 20 系列维修培训指南 I 2000 年 6 月版
2 综述
15
2.4.5
2.4.52.4.5
2.4.5 安全电路
安全电路安全电路
安全电路
SIPLACE 80S-20/F
4
/F
4
-6/F
5
自动贴片系统有两个单独的安全电 路
由组合继电器
K1
和
K2
进行
监控
两个组合继电器集成在电源装置 内
危险
SIPLACE
系列的自动贴片系统由
L1, L2, L3
电源电压供电
这意味着部分系统极有可能带有致命的电压 - 即使在切断主开关时也是如此 如果这些自动贴片
系统操作不正确
则可能造成人员死亡 严重受伤或巨大的损失
应始终遵循适用的事故防范和 VDE 规定 尤其是 VDE0113 以及在用户所在国适用的规定 电源
只有合格的并经过训练的人员才能打开装置上的保护罩
组合继电器
K1
和
K2
对以下电路进行监控 :
K1.急停开关电路
供料台或华夫盘交换器的安全电 路 保护罩开关和允许软件信号
K2.急停开关电路 K1组合继电器 软件允许信号和按键开关
如果上述任一功能失效 , 则
K1
或
K2
就会被触发 通向大电流变压器 此变压器向悬臂轴电机
供电
的电源电压就会被切断 通向旋转头旋转电机的电压由
70 V
降至
10V
并继续向贴片头的
dp
和
dR
轴供应
3
0 伏电压
下图说明了
K1
和
K2
的各种状态及其对轴和
PCB
传送导轨部件的影
响