2OM-1104-001.pdf - 第312页
Layout of Driver 3 Section Layout of Driver 3 Section 0004-001 - (M748YBG---0001) Chapter 3 3 17 AFU01EMTP

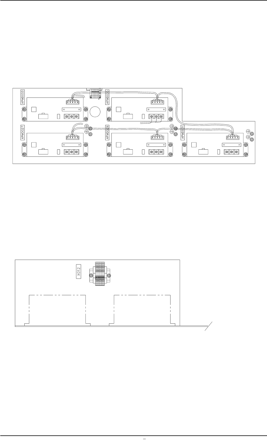
Layout of Driver 2 Section
Layout of Driver 2 Section
0004-001 - (M748YBF---0001) Chapter 3 3 16 AFU01EMTP

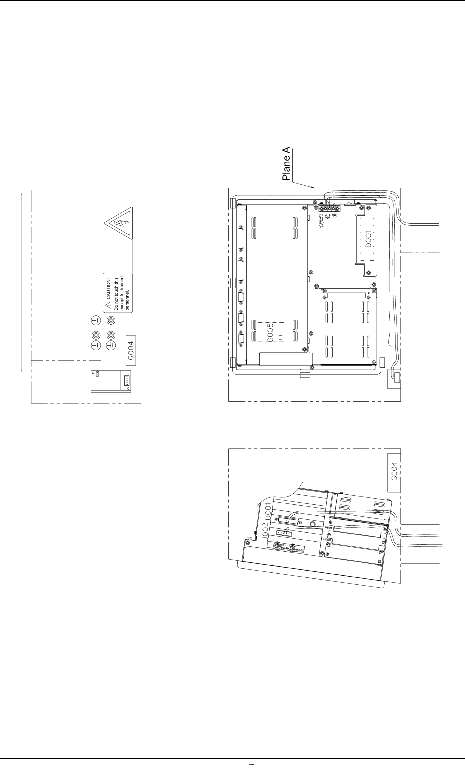
Layout of Driver 3 Section
Layout of Driver 3 Section
0004-001 - (M748YBG---0001) Chapter 3 3 17 AFU01EMTP

Layout of Control Box Section
Layout of Control Box Section
0004-001 - (M748YC---0001) Chapter 3 3 18 AFU01EMTP