2OM-1104-001.pdf - 第331页
Layout 3 of Mechanical Distribution Section Layout 3 of Mechanical Distribution Section 0004-001 - (M748YK---0003) Chapter 3 3-36 AFU01EMTP

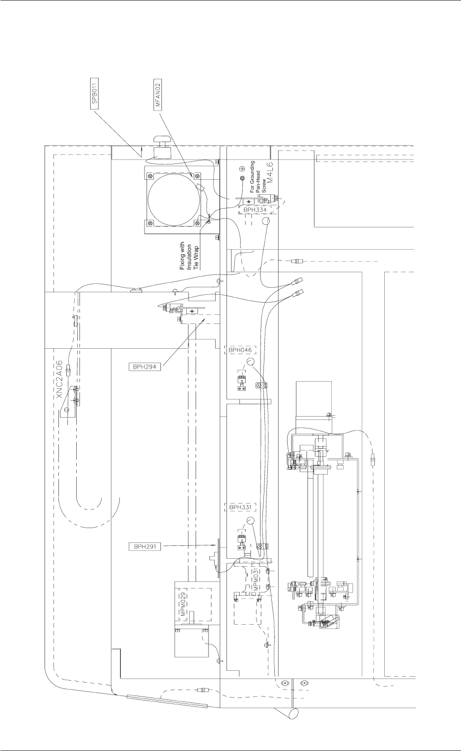
Layout 2 of Mechanical Distribution Section
Layout 2 of Mechanical Distribution Section
0004-001 - (M748YK---0002) Chapter 3 3-35 AFU01EMTP

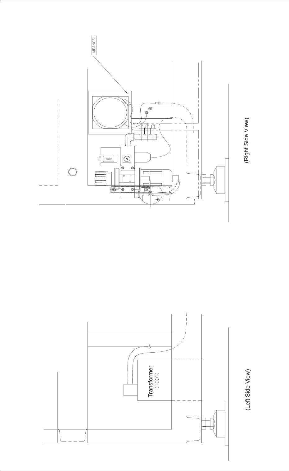
Layout 3 of Mechanical Distribution Section
Layout 3 of Mechanical Distribution Section
0004-001 - (M748YK---0003) Chapter 3 3-36 AFU01EMTP

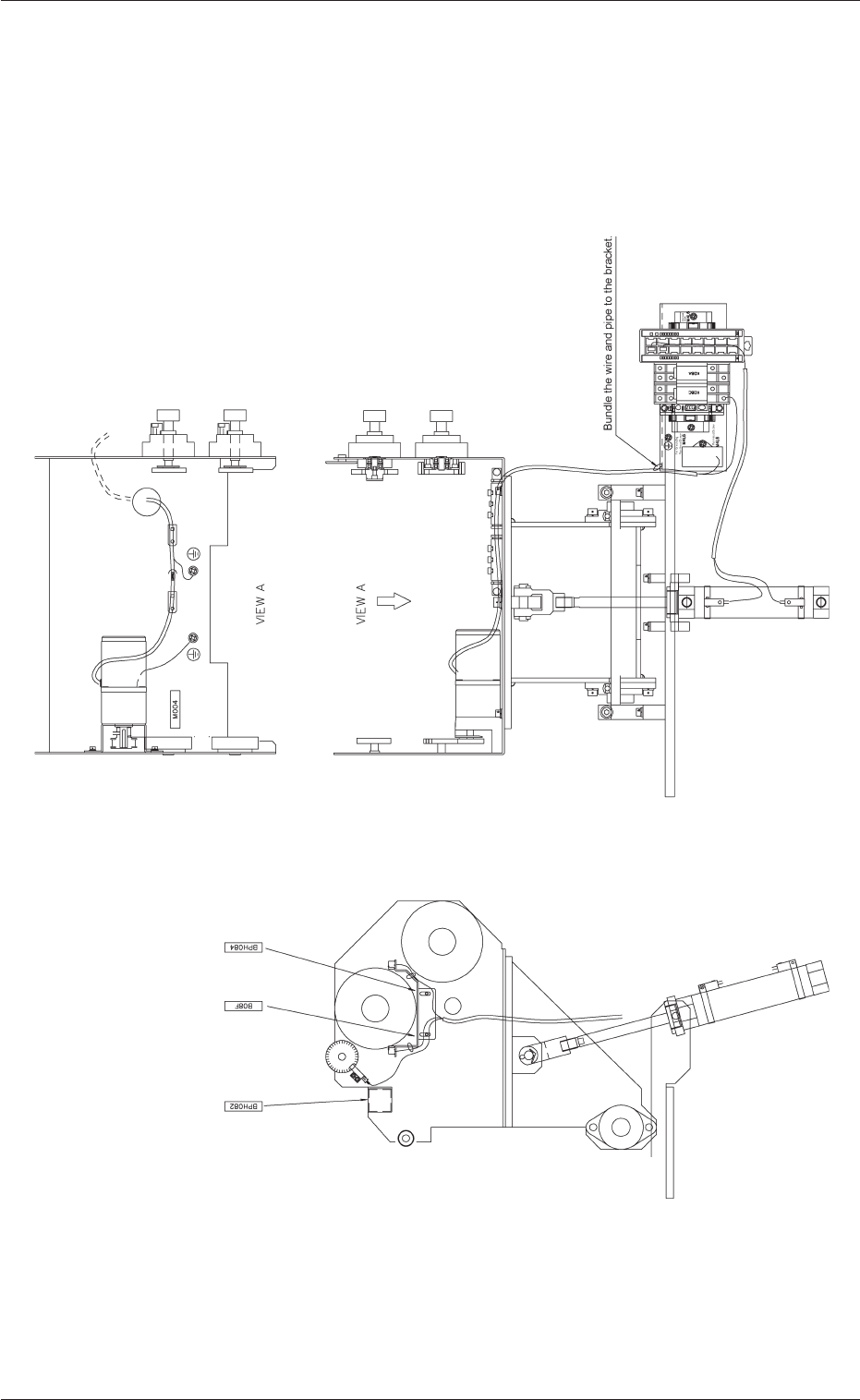
Layout 1 of Cleaning Section
Layout 1 of Cleaning Section
0004-001 - (M748YM---0001) Chapter 3 3-37 AFU01EMTP