FlexTRAK OH Material Handler Manual.pdf - 第266页
FlexTRAK-OH Material Handli ng System IOM Manual Specifications 8-6 © 2023 Nordson C orporation 8.5 Clearance Distance Requirement The distanc e measured a way from the ma chine or obstruc tion for body cl earance i n th…

FlexTRAK-OH Material Handling System IOM Manual Specifications
© 2023 Nordson Corporation 8-5
8.4.2 Side View
Measurement unit: mm
Figure 8-2 Side View Dimensions

FlexTRAK-OH Material Handling System IOM Manual Specifications
8-6 © 2023 Nordson Corporation
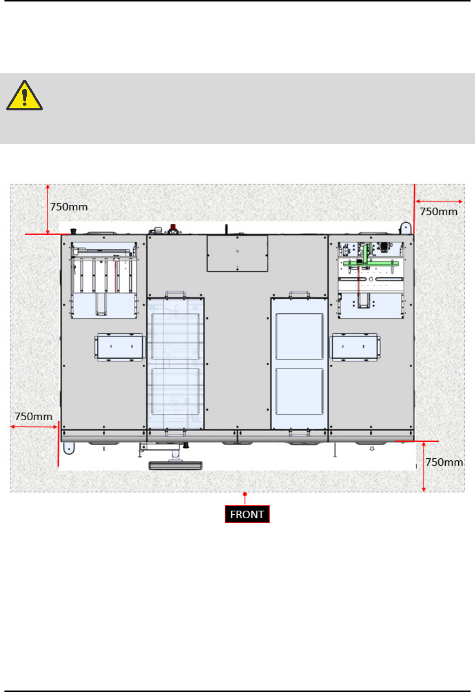
8.5 Clearance Distance Requirement
The distance measured away from the machine or obstruction for body clearance in the given body
posture. Clearance requirements are applied to all areas of the machine (Figure 8-3).
WARNING! Failure to comply with the equipment operating space clearance requirement may
affect the user's ergonomic posture health. Follow plant safety guidelines when
working at the high environment.
8.5.1 FlexTRAK-OH Plant Clearance
Figure 8-3 FlexTRAK-OH Plant Clearance (750mm)

FlexTRAK-OH Material Handling System IOM Manual Specifications
© 2023 Nordson Corporation 8-7
8.5.2 Human Body Minimum Clearance
Table 8-3 Human Body Minimum Clearance
Body Posture
Job Activities
Height Level
Illustration Minimum Clearance
Sitting on floor Ground
Overhead clearance,
A = 1220 mm
Forward horizontal
clearance,
B = 790 mm
Squatting Ground to center
Overhead clearance,
A = 1000 mm
Forward horizontal
clearance,
B = 690 mm
Stooping
Ground to center,
center
Overhead clearance,
A = 1450 mm
Forward horizontal
clearance,
B = 1020 mm