00193332-01.pdf - 第570页
Manuale operatore del calcolatore di linea UNIX 17.3 Descrizione dei componenti e dei circuiti stampati V e rsione software 503.xx Edizione 02/2002 17.3.3 Ci rcuito stampato 3: tema centrale T ecnica della scheda 17 - 56…

17.3 Descrizione dei componenti e dei circuiti stampati Manuale operatore del calcolatore di linea UNIX
17.3.2 Circuito stampato 2: tema centrale Descriz. della forma involucri (GF) Versione software 503.xx Edizione 02/2002
17 - 568
I
t I I
Fig. 17.3.6 Editore posizioni di montaggio del circuito stampato
Immettere il nome del Set FS;
# = non è definita nessuna FS
per la posizione di montaggio
immettere il numero del livello
di montaggio
# = non definiti livelli per la
posizione di montaggio
b = monta
k = incolla
d = dispensa (pasta salda)
n= rifinisci
s = blocca (per montare)

Manuale operatore del calcolatore di linea UNIX 17.3 Descrizione dei componenti e dei circuiti stampati
Versione software 503.xx Edizione 02/2002 17.3.3 Circuito stampato 3: tema centrale Tecnica della scheda
17 - 569
I
t I I
pattern_2
pattern_1
pattern_3
pattern_4
board_1
board_2
board_3
board_1
board_2
board_3
board_3
board_2
board_1
board_3
board_2
board_1
Example_3
X
Y
Sistema coor-
dinate CS O°
5
10
15
Ang. 1
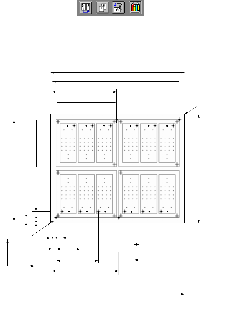
17.3.3 Circuito stampato 3: tema centrale Tecnica della scheda
Il circuito stampato 3 è costituito da quattro schede (pattern), ognuna delle quali è a sua volta composta da tre
circuiti singoli (board). Dimensione e assemblaggio dei singoli circuiti corrispondono al circuito stampato 2. Le
schede 3 e 4 sono rotate di 180°. Per ogni scheda viene eseguito il riconoscimento della posizione del CS,
stando a disposizione a questo fine tre fiducial scheda per scheda.
335
272
5
150
116
10
15
60
10
16
Ang. 2
Alt. CS= 1,5 mm
Punto zero di ogni piano:
CS, scheda, circuito stampato
Ink dot
Fig. 17.3.7 Dimensioni del circuito stampato 3
252
160
315
Direz. di trasporto

17.3 Descrizione dei componenti e dei circuiti stampati Manuale operatore del calcolatore di linea UNIX
17.3.3 Circuito stampato 3: tema centrale Tecnica della scheda Versione software 503.xx Edizione 02/2002
17 - 570
I
t I I
La descrizione della GF non è necessaria.
La descrizione del CO non è necessaria.
La descrizione del CD non è necessaria.
Non è disponibile nessuna fiducial scheda.
Non è disponibile nessun ink dot.
Le posizioni di montaggio vengono definite sui circuiti
singoli.
Descrizione della GF
Avviare l’Editore CS
per un circuito
stampato
Indicare la posizione
del circuito stampato
sulla macchina
Definire l’ink dot
Descrizione del CO
Descrizione del CD
Immettere le dimen-
sioni del circuito
Definire le fiducial
scheda
Segue a pag. 17-44
Editore scheda
Editore fiducial scheda
Immettere le posi-
zioni di montaggio
Descrizione dei circuiti stampati
Editore pos.
di mont.