RX-7R_维修手册.pdf - 第473页
第 7 章 故障分析 7- 2. 伺服放大器 (MR- J3) 警报处理方法 注意 发生 警报时 请排除原因 确保 安全, 解除警 报后 再 从新运行 。否则 可 能造成伤害。 发生 “ 绝对 位置消失 ” ( 25 ) 时, 请一定 要再次 进行原点 设置。否 则可能发生意外 的运转。 请在发生警报的 同时将伺服置于 OFF ,切断主 电路电 源。 • 发生如下警报 时, 请勿解除 警报 后反复从新 开始 运行 。否则有可…

第
7
章
故障分析
7-2. 伺服放大器 (MR-J3)
编
号
名称
警报的解除
电源 OFF→ON
错误复位
CPU 复位
888 “看门狗”监视 ○ - -
* 1
排除发生原因后,请隔开约 30 分钟的冷却时间。
* 2
要看控制器的通信状态,有时无法排除警报起因。
警告
编
号
名称
92 电池断线警告
96 原点设置失误警告
9F 电池警告
E0 过再生警告
E1 过负荷警告 1
E3 绝对位置计数器警告
E4 参数警告
E6 伺服强制停止警告
E7 控制器緊急停止警告
E8 冷却风扇旋转速度降低警告
E9 主电路 OFF 警告
EC 过负荷警告 2
ED 输出功率超过警告
26

第
7
章
故障分析
7-2.
伺服放大器 (MR-J3)
警报处理方法
注意
发生警报时请排除原因确保安全,解除警报后再从新运行。否则可
能造成伤害。
发生“绝对位置消失”(25)时,请一定要再次进行原点设置。否
则可能发生意外的运转。
请在发生警报的同时将伺服置于 OFF,切断主电路电源。
•
发生如下警报时,请勿解除警报后反复从新开始运行。否则有可能导致伺服放大器、伺服电动机
发生故障。在排除发生原因的同时,请隔开 30 分钟以上的冷却时间之后再开始运行。再有,为了
保护主电路元件,发生这些警报后只有经过规定时间后才能通过伺服系统控制器进行解除。这一
规定时间是根据伺服放大器报警前的负载变化状况来判断并自动算出。
- 再生故障 (30)
- 主电路元件过热 (45)
- 伺服电动机过热 (46)
- 过负荷 1 (50)
- 过负荷 2 (51)
•
解除警报可以通过电源的 OFF → ON,或通过伺服系统控制器发出错误复位指令、CPU 复位指令。
当发生警报后,故障(ALM)变为 OFF,伺服电动机因动力制动器动作而停止。此时,显示部会显示警报
No. 。
如使用“MR Configurator”,可以参考警报的发生原因。警报的详细信息可以利用“MR Configurator”
的警报记录进行确认。
27

第
7
章
故障分析
7-3. 伺服放大器 (MD202/MD212)
7-3. 伺服放大器 (MD202/MD212)
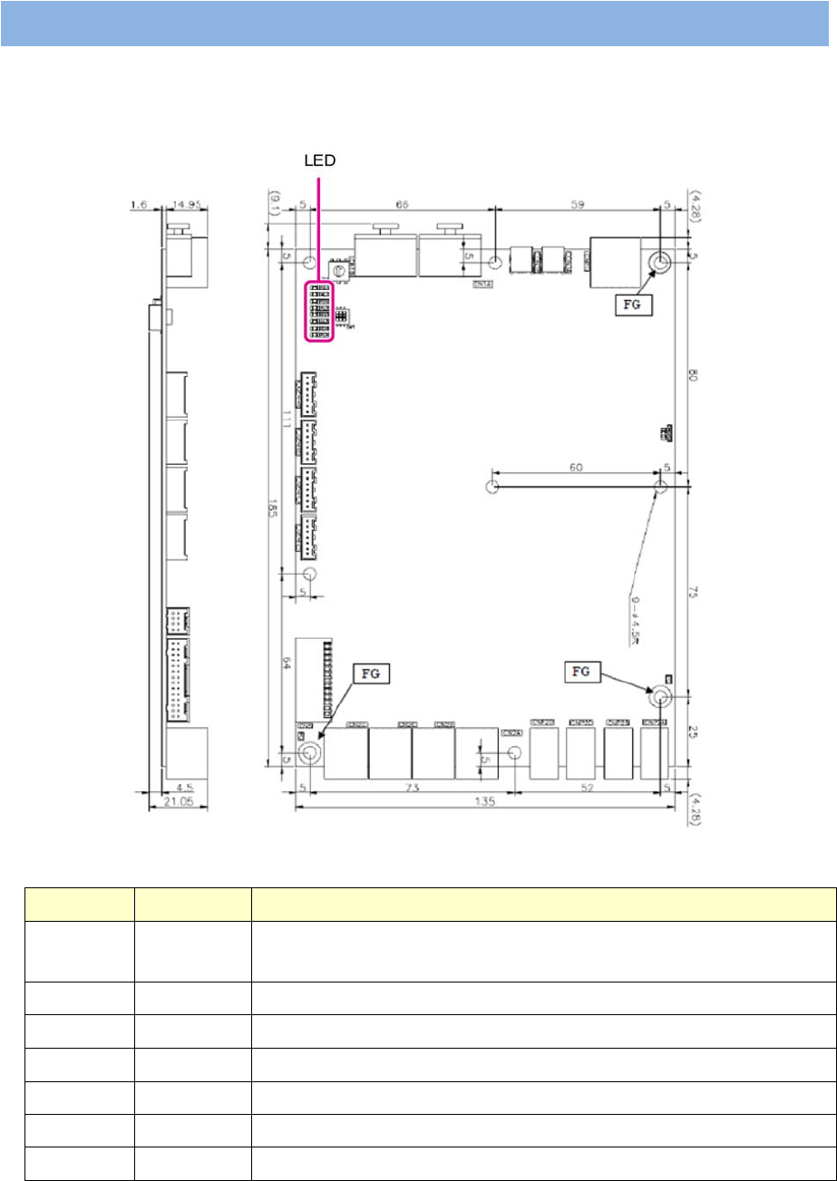
伺服放大器 MR-MD202 及 MD212 可以通过电路板上的 LED 确认警报状态。
LED 配置(MD212 时)
利用电路板上的 LED 显示状态
No.
LED 名称
功能
1 CHARGE 主电路存在电荷时亮灯。
亮灯时请勿进行电线的换接等。
2 LD1 显示 A 轴的准备状态。
3 AL1 显示 A 轴的错误状态。
4 LD2 显示 B 轴的准备状态。
5 AL2 显示 B 轴的错误状态。
6 LD3 显示 C 轴的准备状态。
7 AL3 显示 C 轴的错误状态。
28