RS-1使用說明書.pdf - 第63页
第 1 部 基本篇 第 1 章 装置概要 1- 46 2) 基板下面 支撑销 不可 设置范围 传送轨道固定侧 50 ~ 650 mm 3mm 3mm 57.5mm 8mm 8mm 220mm 87mm 8mm 8mm 220mm 左→右 流向时 挡块可动范围 0 ~ 320mm 左←右 流向时 50 ~ 370mm XL 规格 5 0 ~ 56 0mm

第 1 部 基本篇 第 1 章 装置概要
1-45
1-6 印刷基板规格
(1)
基板条件
规格
最小尺寸
(L x W)
最大尺寸
(L x W)
厚度
T
最大允许
重量
翘曲允许值
1
缓冲
3
缓冲
标准
基板尺寸
50 x 50mm
650 x 370mm
(1 次夹紧)
950 x 370mm
(2
次夹紧
)
360 x
370mm
0.3~
4.0mm
3,000g
每 50mm 允许在 0.2mm 以
下。上翘,下翘的总和在 1mm
以下(根据 JIS B 8461)
XL
基板尺寸
650 x 560mm
注:L 表示传送方向尺寸,W 为 L 的直角方向,W/L=2 以下。
注:与基板材质、基板颜色无关,反射率低的基板,有时无法用传感器检测。
(2)
基板限制条件
1) 基板表面
搬送レール固定側 50~610mm
シングル仕様:50~590mm
3mm
3mm
传送轨道固定侧
不可
贴片范围
50~950mm
标准规格:
50
~
370mm
XL 规格:50~560mm

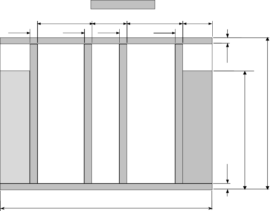
第 1 部 基本篇 第 1 章 装置概要
1-46
2) 基板下面
支撑销不可设置范围
传送轨道固定侧
50~650
mm
3mm
3mm
57.5mm
8mm
8mm
220mm 87mm
8mm
8mm
220mm
左→右
流向时
挡块可动范围 0~320mm
左←右
流向时
50
~
370mm
XL
规格 50~560mm

第 1 部 基本篇 第 1 章 装置概要
1-47
3) 贴片元件高度及基板背面传送高度范围
注 1: 根据元件高度,软件至 1/3/6/12/20/25mm 变化
注 2: 实装结束的既有元件的高度,为元件高度规格以下。
注 3: 激光识别元件的元件高度请参照“1-5 对象元件 (2)激光识别元件的识别高度”
图像识别的元件高度请参照“1-5 对象元件 (3)图像识别元件的识别高度”。
基板夹紧方式
以基板上面为基准,在传送轨道上从固定侧、可动侧两端,钳夹夹板的方式。
基板宽度调整方式
使用马达自动调整基板宽度的方式。(标准装备)
3mm
最大 40mm
基板背面
可贴装范围
基板
元件
3mm
注 1