N7201A616J00.pdf - 第673页
NPM-W 2 EJM7DJ-MB-09O-00 9-1-2 -2 デュアルコンベヤー 基準レール 前側 左から右流れ・手前基準 前側 右から左流れ・手前基準 左から右流れ・手前基準 右から左流れ・手前基準 可動レール ■シングルレーンモード ■デュアルレーンモード 1 2 1 2 基板搬送方向 基準レール 基板搬送方向 可動レール 基準レール 前側 前側 可動レール 基板搬送方向 基準レール 可動レール 基準レール 可動レール 基準レ…

NPM-W2 EJM7DJ-MB-09O-00
仕様
9-1-2-1
基板の搬送方向
シングルコンベヤー
●基板の搬送方向の変更は、オプションです。
基板搬送方向
可動レール
基準レール
前側
左から右流れ・手前基準
可動レール
基準レール
前側
右から左流れ・手前基準
基板搬送方向
基板搬送方向
可動レール
基準レール
前側
左から右流れ・奥基準
前側
基板搬送方向
右から左流れ・奥基準
可動レール
基準レール
■標準
■オプション
1 2
1 2
操作編
9-1-2

NPM-W2 EJM7DJ-MB-09O-00
9-1-2-2
デュアルコンベヤー
基準レール
前側
左から右流れ・手前基準
前側
右から左流れ・手前基準
左から右流れ・手前基準 右から左流れ・手前基準
可動レール
■シングルレーンモード
■デュアルレーンモード
1 2
1 2
基板搬送方向
基準レール
基板搬送方向
可動レール
基準レール
前側 前側
可動レール
基板搬送方向
基準レール
可動レール
基準レール
可動レール
基準レール
基板搬送方向
基準レール
可動レール
基準レール
基板搬送方向 基板搬送方向

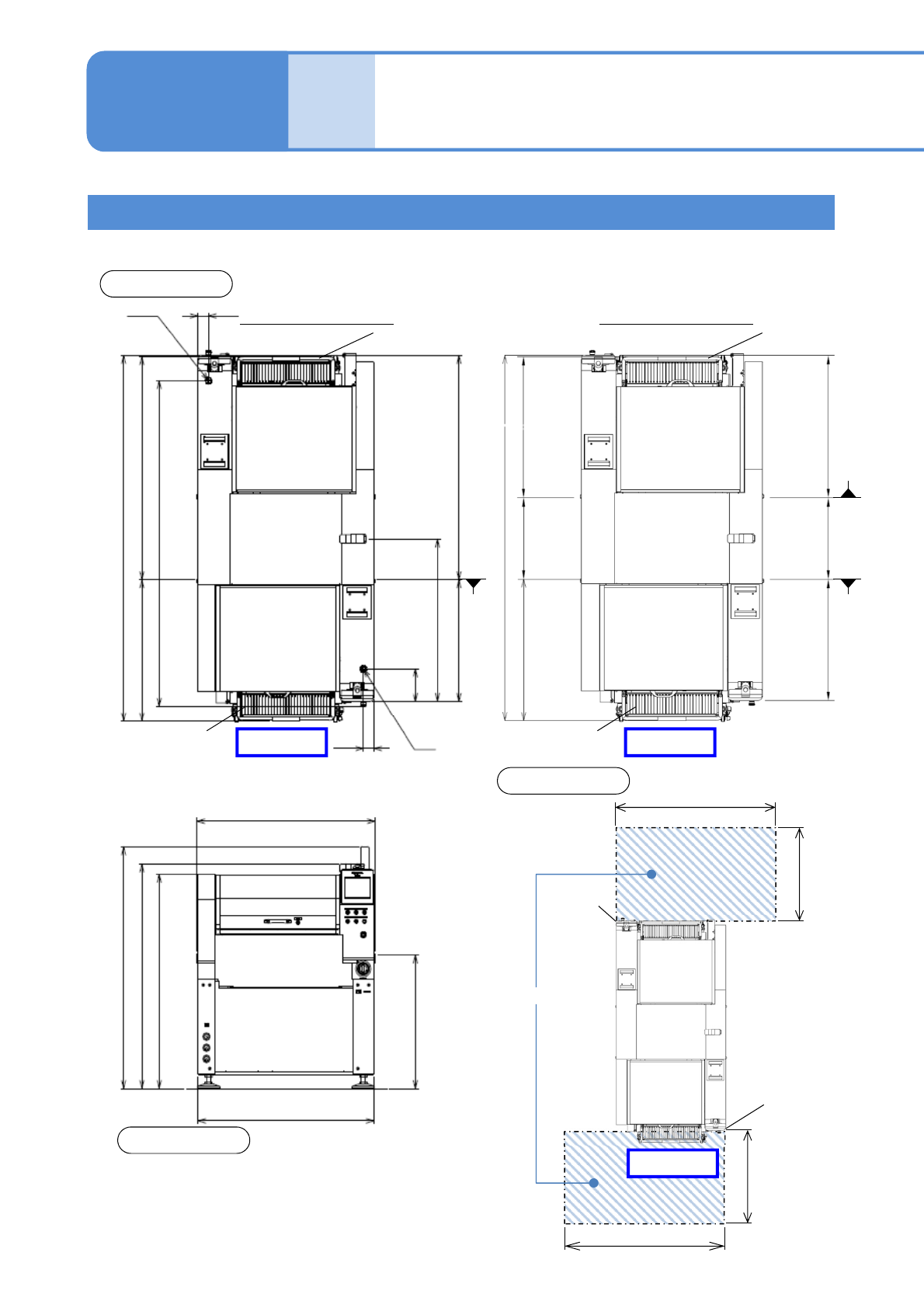
NPM-W2 EJM7DJ-MB-09O-00
仕様
外形寸法と作業エリア 1
フィーダー仕様
9-1-3-1
■交換台車を接続するとき
作業エリア
(単位:mm)
お知らせ
●イラストは、縮尺などが実機と厳密には合致して
おりません。ライン構成・寸法等を検討されると
きには、別途資料をご請求ください。
●設備の下部にダクトなどを通すときは、本体との
隙間を40 mm以上確保してください。
操作編
9-1-3
外形寸法
76
エア
2 465
1 504954
2 194
220
1 095.5
820.5 1 511.5
900
基板搬送高さ
1 265(カバー外形)
1 514
1 444
1 629
1 280(コンベヤー長さ)
電源
76
2 465
943.5571943.5
810
前側前側
571 951
デュアルコンベヤー仕様シングルコンベヤー仕様
基板搬送基準
(後レーン)
基板搬送基準
(前レーン)
1 830
1 830
1 080
1 080
前側
基板搬送基準
作業エリア
カバー端面
カバー端面
交換台車 交換台車
交換台車交換台車