RS-1使用说明书.pdf - 第39页
第 1 部 基本篇 第 1 章 装置概要 1-20 1-2-5 图像识别装置( VCS )的构造 通过组合 各 LED 照明, 以及调整 亮度, 形成 多种多样的照明图案 , 可制作出适应于识别对象 (引脚 、 球形、元件 外形)的照明 图案。 所照射出的 识别对象 通过设置在下部的 VCS 摄像机拍摄并 进行图像处理 。 反射 / 同轴照明 : QFP 、 SOP 等引 脚元件 侧面照明 : BGA 、 CS P 等球形元件 透射照明…

第 1 部 基本篇 第 1 章 装置概要
1-19
(3) ( )
1)方型芯片 2)圆筒形芯片(Melf) 3)铝电解电容
4)SOT 5)SOP 6)SOJ
7)QFP 8)PLCC 9)BQFP
10)TSOP 11)TSOP2 12)BGA
13)网络电阻 14)微调电容 15)单向引脚连接器
16)鸥翼式插座
J 引脚插座
带缓冲器的插座
A
D
A
D
W
D
A
D = A
A
D
A
D
A
D
A
D
A
A
D = A
A
D
A
D
A
D
A
D = A
D
A
A
D = A + 0.5mm
A
D = A

第 1 部 基本篇 第 1 章 装置概要
1-20
1-2-5 图像识别装置(VCS)的构造
通过组合各 LED 照明,以及调整亮度,形成多种多样的照明图案,可制作出适应于识别对象(引脚、
球形、元件外形)的照明图案。
所照射出的识别对象通过设置在下部的 VCS 摄像机拍摄并进行图像处理。
反射/同轴照明 :QFP、SOP等引脚元件
侧面照明 :BGA、CSP等球形元件
透射照明 :外形识别元件
① LED 基板(上层透射照明)
② LED 基板(下层透射照明)
③ LED 基板(侧面照明)
④ LED 基板(同轴照明)
⑤ 54mm/27mm/10mm 视野摄像机
⑥ 汽缸(仅在设定 2 个相机时增加)
⑤
⑥汽缸
④ LED 基板(同轴照明)
① LED 基板(上层透射照明)
②LED 基板(下层透射照明)
③LED 基板(侧面照明)

第 1 部 基本篇 第 1 章 装置概要
1-21
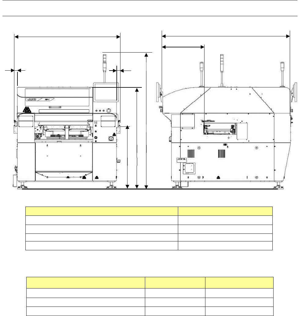
1-3 机械规格
1-3-1 机械尺寸与重量
(1) 机械尺寸
单位:mm
尺寸
A
(传送长度)
1,500
C
(不含
LCD
)
1,810
H
(传出量)
50
I
(从安全盖(安全罩)前面到基准侧基板传送道)
604
※上述尺寸的公差为±5mm。
单位:mm
尺寸
传送高度 900mm 传送高度 950mm
B(从地面至传送带上面)
900 950
E(从地面到安全盖(安全罩)上面)
1,440 1,490
G(从地面到信号灯上面)
1,905 1,955
(2)主机重量
1,700Kg
※不含选项类
A
B
C
E
G
I
H
H