Q170226E01.pdf - 第74页
3.1 Outline of Installation SERVICE MANUAL RH5 3.1−1 DA3SEC−1 1−010−A0 3.1 Outline of Installation DA3SEC−1 1−010−A0 Sentence No. Basically , installation is carried out by our service personnel. This chapter describes f…

RH5
SERVICE MANUAL
3.0−2
DA3SEC−11−000−B0
DA3SEC−11−000−B0
Sentence No.
3. INSTALLATION
This chapter includes general procedures of machine installation.
Beware that some descriptions in this chapter may not apply to the actual
machine depending on the specification.
x Be sure to read “Safety Precautions” in chapter 1 carefully.

3.1 Outline of Installation
SERVICE MANUAL
RH5
3.1−1
DA3SEC−11−010−A0
3.1 Outline of Installation
DA3SEC−11−010−A0
Sentence No.
Basically, installation is carried out by our service personnel.
This chapter describes fundamental installation works.
Make sure that the input PE conductor is longer than the phase conductor to comply with the requirement
at site.
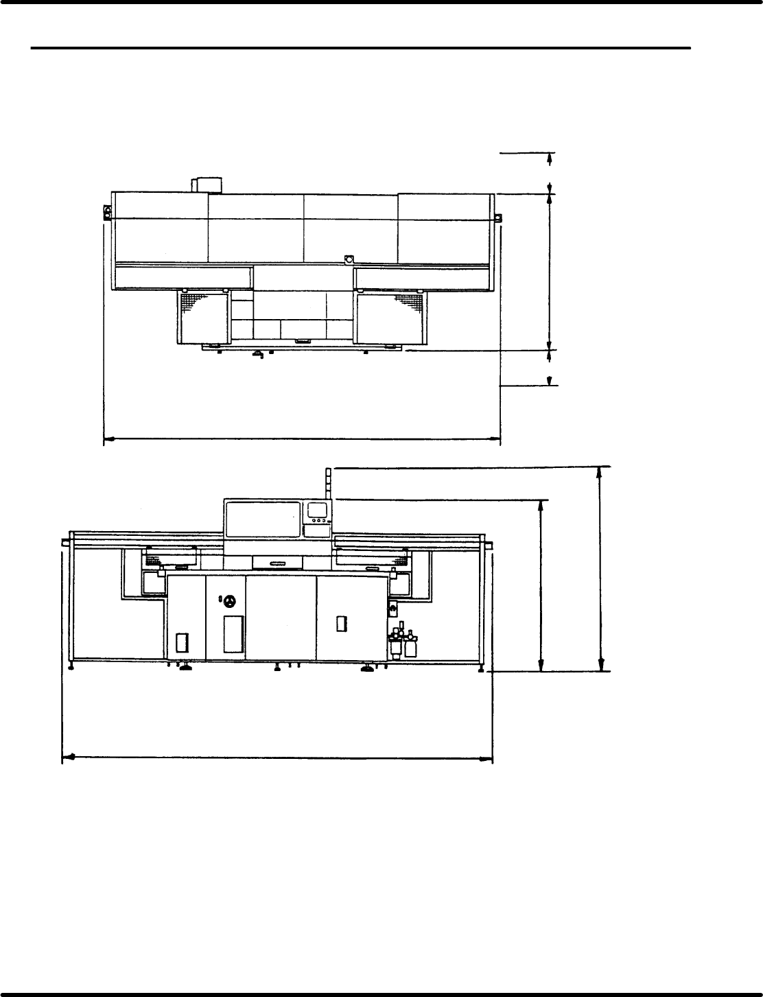
Work space
Work space
1,860 (NM−8244A,B,C)
2,025 (NM−8245A,B,C)
1,650 (NM−8244A,B,C)
1,600 (NM−8245A,B,C)
3,296 (NM−8244A, NM−8245A)
4,146 (NM−8244B, NM−8245B)
5,160 (NM−8244C, NM−8245C)
1,950 (NM−8244A,B,C)
1,900 (NM−8245A,B,C)

RH5
3.1 Outline of Installation
SERVICE MANUAL
3.1−2
DA3SEC−11−010−A0
3.1.1 Environmental Requirements
If the machine has not been installed properly, expected functions cannot be attained.
Install the machine on the location where the following conditions can be met:
x Adequate electric capacity to the machine.
The power supply voltage fluctuation shall be within r 5%.
x Grounding work with Class 2 or upper grade.
x Supply air of 0.5 MPa and adequate rate must be assured.
x The room temperature is in the range of 10−30qC.
x The humidity is in the range of 20−90% with no dew formation.
x Capable of sustaining the mass of the machine.
x No considerable vibration.
x No inflammable or corrosive gas is around.
x No dust and/or soot.
3.1.2 Transport
Transport of the machine is carried out by our service personnel.
If the customer should move the machine by himself, use an adequate apparatus
capable of the weight of the machine.
Model
NM−8244A NM−8244B NM−8244C NM−8245A NM−8245B NM−8245C
Mass
Approx.
2,500 kg
Approx.
2,700 kg
Approx.
2,900 kg
Approx.
2,600 kg
Approx.
2,800 kg
Approx.
3,000 kg