RS-1R使用说明书.pdf - 第1012页
第 2 部 功能 详解篇 第 13 章 程序 补充 13-2 SOT SOP S O P ( 带有散热片的类型 ) 外形尺寸 横 外形尺寸 纵 元件高度 外形尺寸 横 外形尺寸 纵 元件高度 + 引脚长度 引脚间距 外形尺寸 横 外形尺寸 纵 元件高度 引脚宽度 引脚间距 散热片 引脚长度

第 2 部 功能详解篇 第 13 章 程序补充
13-1
第13章 程序补充
13-1 元件尺寸图例
方形芯片ꞏ方形芯片(LED)
圆筒形芯片(Melf)
铝电解电容
外形尺寸 横
外形尺寸 纵
元件高度
外形尺寸 横
外形尺寸 纵
元件高度
外形尺寸 横
外形尺寸 纵
元件高度
引脚长度
引脚宽度
+侧
-侧
+

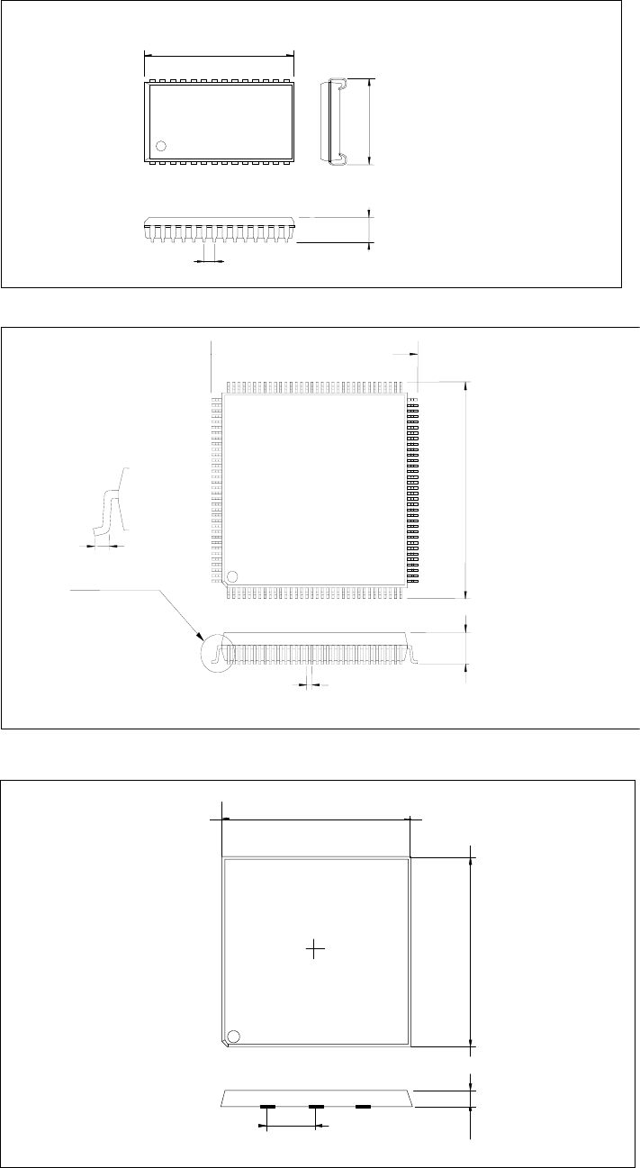
第 2 部 功能详解篇 第 13 章 程序补充
13-2
SOT
SOP
SOP(带有散热片的类型)
外形尺寸 横
外形尺寸 纵
元件高度
外形尺寸 横
外形尺寸 纵
元件高度
+
引脚长度
引脚间距
外形尺寸 横
外形尺寸 纵
元件高度
引脚宽度
引脚间距
散热片
引脚长度

第 2 部 功能详解篇 第 13 章 程序补充
13-3
SOJ
部品高さ
外形寸法 縦
外形寸法 横
リードピッチ
+
QFP
部品高さ
外形寸法 縦
外形寸法 横
リードピッチ
リード長
+
QFN
外形寸法 縦
外形寸法 横
部品高さ
リードピッチ
外形尺寸 横
引脚间距
外形尺寸 横
引脚间距
引脚间距
引脚长度
元件高度
元件高度
外形尺寸 纵
外形尺寸 纵
外形尺寸 横
外形尺寸 纵
元件高度
外形尺寸 横
放大图