JM-50使用说明书.pdf - 第762页
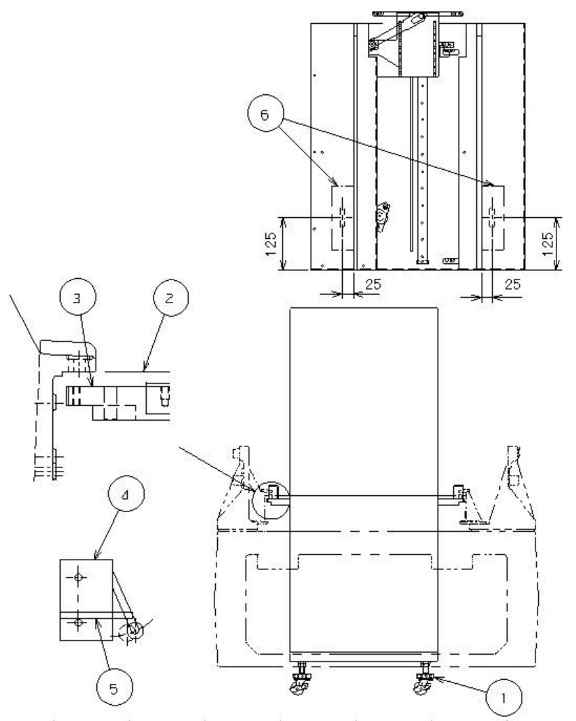
第 2 部 功能详解篇 第 11 章 选项组件 11 - 11 调整水平后,请 将脚轮调节器①( 2 处)旋回 1 圈 ,使装置前部下 降。 松开主机构造阀 的捆束线,将起重装置的 罩安装在 主机上,使主机 的选择 SW ②为 ON ,进行夹紧 。 请多次反复安装 拆下,以确认是否确实可 以 夹紧 。 (不能夹紧时, 可能是构 造阀不能完全关 闭,请调整起重装置罩的 位置) 请在 夹紧 状态下再次调整 水平(微调整) 。 调整后,请将调…

第 2 部 功能详解篇 第 11 章 选项组件
11-10

第 2 部 功能详解篇 第 11 章 选项组件
11-11
调整水平后,请将脚轮调节器①(2 处)旋回 1 圈,使装置前部下降。
松开主机构造阀的捆束线,将起重装置的罩安装在主机上,使主机的选择 SW②为 ON,进行夹紧。
请多次反复安装拆下,以确认是否确实可以夹紧。
(不能夹紧时,可能是构造阀不能完全关闭,请调整起重装置罩的位置)
请在夹紧状态下再次调整水平(微调整)。
调整后,请将调节器③降至接触地面的位置,最后用锁紧螺母④进行固定。
请将缆线、压缩空气管道盘绕在框架的下部。
缆线、空气管

第 2 部 功能详解篇 第 11 章 选项组件
11-12
(1) 在主机右侧面的接口板上的「MTS 用电源连接器」、「接口连接器」、「MTS 用φ 6 管道取出口」上,
连接各缆线和压缩空气管。
(2) 请接入装置电源,对机器设置的「使用单元」和「MTS 安装位置偏移量」进行设置。
①
②
③
TR5SNK
① MTS 用电源连接器
② MTS 用接口连接器
③ MTS 用
φ
6 管道取出口