RX-6 使用说明书 用户使用 Rev11.pdf - 第144页
第 1 部 基本篇 第 2 章 生产 2- 29 <基板传送动作 概 略> • 未使用传 送限 动器时的传 送动作 1) 基板传入, IN 传感器 1 检 测出基板后,传送 马达 18 会驱动驱 动轴 12 ,开始通过传送带传送 。 2) 基板到达 STOP 传感器 2 ・ 3 的 位置后, 会使基板 的传送速度减速 ,在指定 位置停止 ,支撑台 5 上升 的同时, 夹紧板 19 会上升,将 基板向上推至 PW B 导轨 4 的位置 ,…

第 1 部 基本篇 第 2 章 生产
2-28
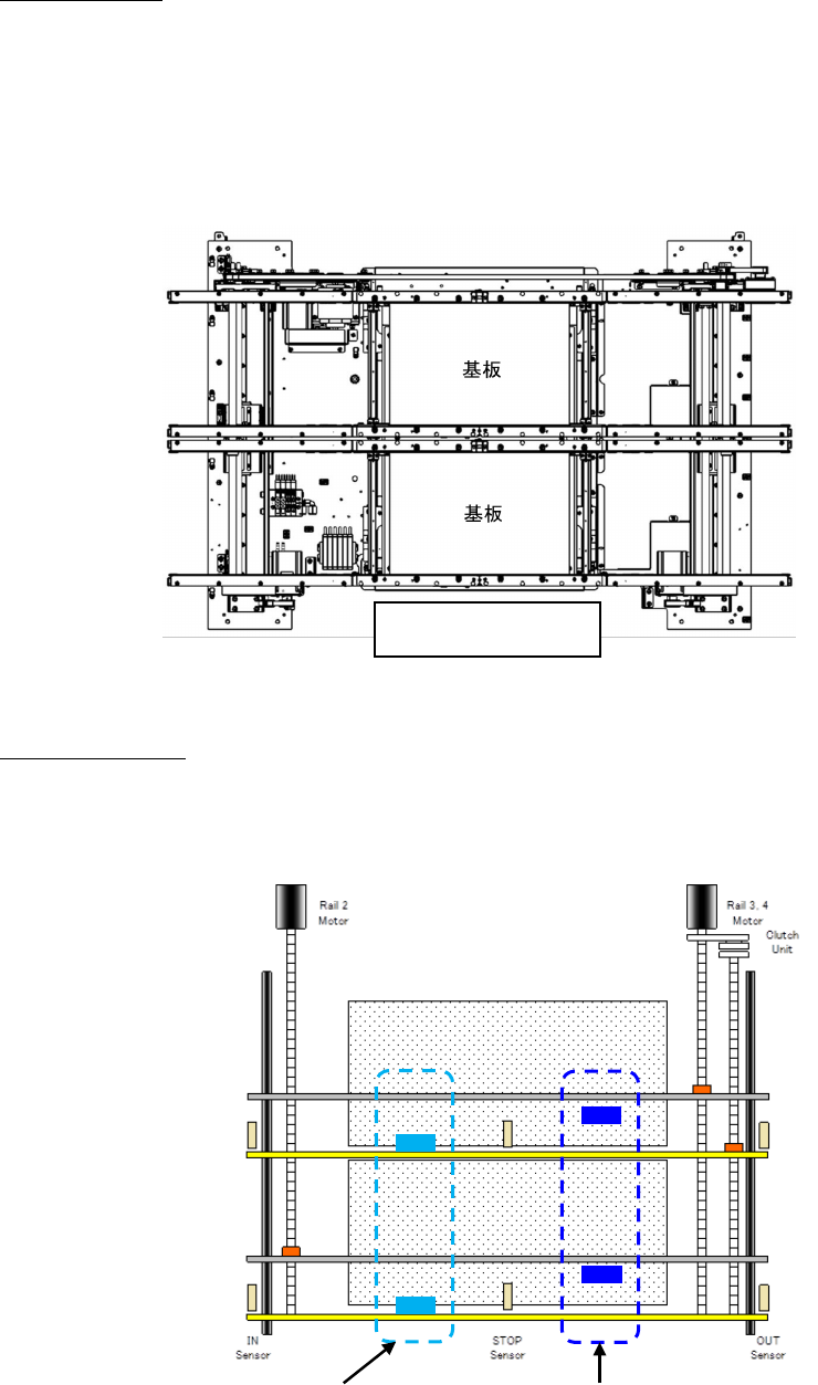
<基板传送装置构造概要>
• 无传送限动器时
基板传送装置在装置中央左右分开,大致为左右对称的构造。
要传送的基板会在装置中央部位被夹紧。
基板 Y 尺寸为 250mm 以下的基板,可按照双通道进行贴片动作。
基板 Y 尺寸为 250mm 以上 450mm 以下的基板,可通过将传送模式切换为单通道进行贴片。
• 使用传送限动器时
当传送方向为左→右时,传送限动器安装在第二通道和第四通道上使用,传送方向为右→左时,安
装在第一通道和第三通道上使用。使用传送限动器时,在基板前端接触到传送限动器的位置上基板
被夹紧。
在中央部位夹紧
传送方向: 从右向左方向传送
停止位置: X=231mm
传送方向: 从左向右方向传送
停止位置: X=591mm

第 1 部 基本篇 第 2 章 生产
2-29
<基板传送动作概略>
• 未使用传送限动器时的传送动作
1) 基板传入,IN 传感器 1 检测出基板后,传送马达 18 会驱动驱动轴 12,开始通过传送带传送。
2) 基板到达 STOP 传感器 2・3 的位置后,会使基板的传送速度减速,在指定位置停止,支撑台 5 上升
的同时,夹紧板 19 会上升,将基板向上推至 PWB 导轨 4 的位置,进行固定。
3) 生产结束后,会解除固定,开始传出。
• 使用传送限动器时的传送动作
1) 基板传入,IN 传感器 1 检测出基板后,传送马达 18 会驱动驱动轴 12,开始通过传送带传送。
IN 传感器 1 OFF 后使传送限动器为 ON。
2) 限动器传感器检知基板后,前进一定距离即降低传送速度,在规定的位置上停止。然后支承台 5
上升,同时夹紧板 19 也上升,把基板推升到 PWB 压板的位置并将基板固定。然后,
使传送限动器 OFF。
3) 生产结束后,会解除固定,开始传出。

第 1 部 基本篇 第 2 章 生产
2-30
2-7-1-2 传送轨道宽度的调整
<在「自动调整基板宽度画面」中的调整方法>
(1)请从生产的菜单选择[生产辅助]-[支援准备]。
(2)请对准传送宽度尺寸。
按下画面的 1「自动调整基板宽度」,即可显示「自动调整基板宽度」画面。
「自动基板宽度调整」在单通道、双通道下,有不同的操作。
注意
按照以下说明点击[移动]按钮后,传送即随之启动。
点击之前,务必确认传送活动区域没有妨碍物体。