KE-2070_使用说明书.pdf - 第56页
第 1 部 基本编 第 1 章 设备概要 1- 38 基板下面 基板下面 支撑销 不可设置范围 基板传送方向 31.5 mm 17.5mm 91mm 4mm 262.5mm (右左流向 220.5mm ) 22mm 20mm 61 mm 7mm 13 mm 17.5mm 21mm 22mm 挡块设置位置 0 ~ 185mm(L - wide 基 板规格、 前面基准 ) 0 ~ 145mm(L - wide 基板规格、 后面基准 ) 0 …

第 1 部 基本编 第 1 章 设备概要
1-37
(2) 支撑销不可设置的范围(基板背面图)
基板下面
基板下面
支撑销
不可设置范围
基板传送方向
34mm
17.5mm
91mm
4mm
164mm(M 基板规格)
244mm(L 基板规格)
22mm
20mm
63.5mm
7mm
25mm
17.5mm
21mm
39.5mm
22mm
挡块设置位置
0 ~ 90mm(M 基板规格,前面基准)
0 ~ 50mm(M 基板规格,后面基准)
0 ~185mm(L 基板规格,前面基准)
0 ~145mm(L 基板规格,后面基准)
传送轨道固定侧
图 1-2-5-2 基板下面不可设置范围 (M,L 基板规格、基板下面图)
基板下面
基板下面
支撑销
不可设置范围
基板传送方向
34mm
17.5mm
91mm
4mm
265mm(右左流向为 223mm)
22mm
20mm
63.5mm
7mm
15.5mm
17.5mm
21mm
22mm
挡块设置位置
0 ~ 210mm
传送轨道固定侧
11mm
14mm
图 1-2-5-3 基板下面不可设置范围 (E 基板规格、基板下面图)
基板传送方向为反方向(向左流动)时,支撑销不可设置范围与图成左右对称。
注意

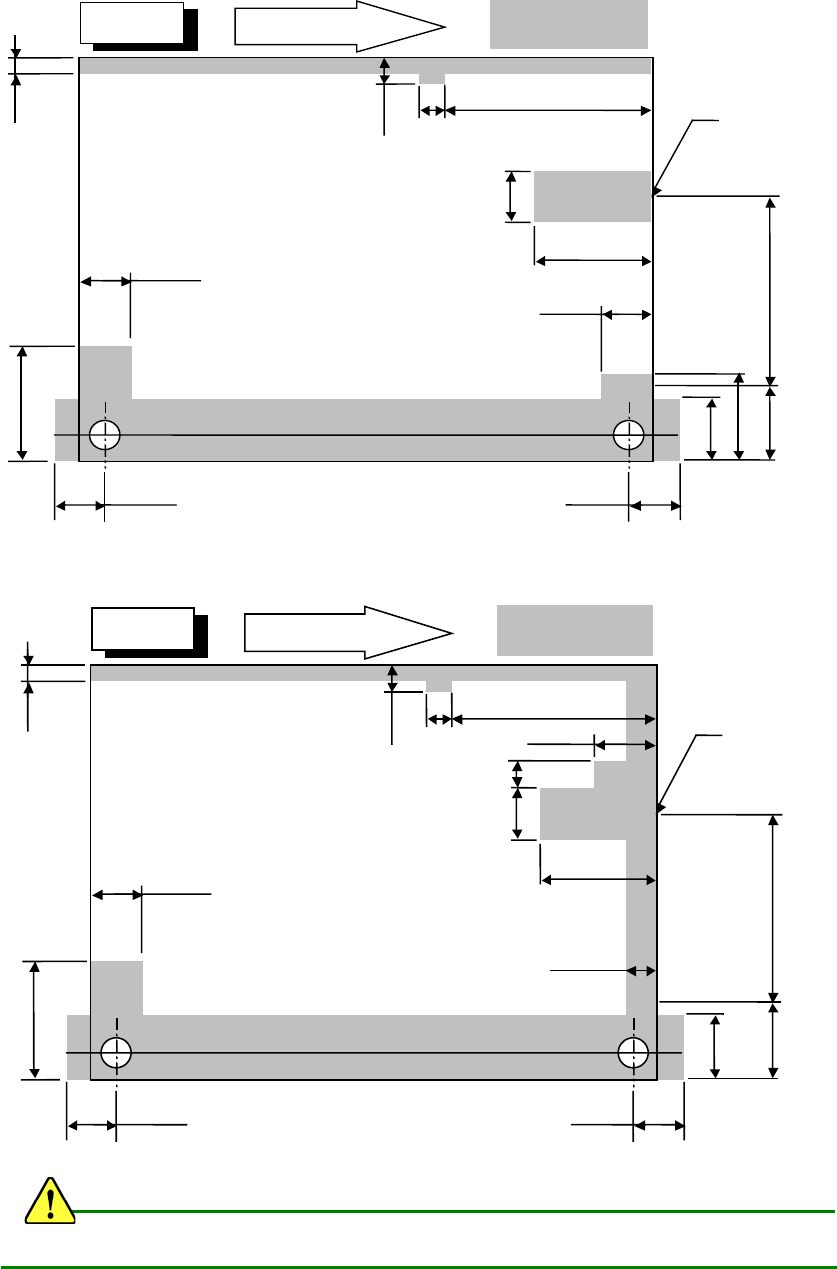
第 1 部 基本编 第 1 章 设备概要
1-38
基板下面
基板下面
支撑销
不可设置范围
基板传送方向
31.5mm
17.5mm
91mm
4mm
262.5mm(右左流向 220.5mm)
22mm
20mm
61mm
7mm
13mm
17.5mm
21mm
22mm
挡块设置位置
0 ~ 185mm(L-wide 基板规格、前面基准)
0 ~ 145mm(L-wide 基板规格、后面基准)
0 ~ 210mm(E 基板规格)
传送轨道固定侧
图 1-2-5-4 基板下面不可设置范围(KE-2080R E、L-wide 基板规格、基板下面图)
基板传送方向为反方向(向左流动)时,支撑销不可设置范围与图成左右对称。
(3)贴片元件高度及基板下面传送高度范围
图 1-2-5-5 贴片元件高度及基板背面传送高度范围
表 1-2-5-1 元件高度规格
机种
元件高度规格
h
1
(mm)
KE-2070
KE-2070C
SC 规格机 6
NC 规格机 12
KE-2080
KE-2080R
NC 规格机 12
HC 规格机 20
EC 规格机 25
基板
h1:尺寸,请参见下表 1-2-5-1
基板下面
不可贴片范围
最大
40mm
3
3

第 1 部 基本编 第 1 章 设备概要
1-39
3. 识别用标记
请按下述条件制作识别用标记。(图1-2-5-6)
但形状推荐使用均匀涂满的圆形。
此外,标记周围的空白区域以图1-2-5-7所示范围为准。
A
C
C
A
B
A
B
B
三角形
A
B
A
B
C
C
B
B
B
正方形
中抜き正方形
菱形
中抜き菱形
円形
中抜き円形
B
A
C
B
A
C
B
B
中抜き三角形 逆三角形 中抜き逆三角形
市松模様(1)
市松模様(2)
十字
图 1-2-5-6 识别标记形状
1. 识别时,标记为上述方向的角度。
但非矩阵基板指定为“使用每一电路的标记”时,基准电路的标记为上述方向的角度,以90°
为单位配置电路时应可识别。
2. 一张基板内的基准领域标记,建议使用同一形状和同一大小的标记。
3. 可识别铜箔及镀锡。
4. 最大登录数
基板标记 1组(2个标记或3个标记)
区域基准标记 50组(2对标记~3对标记)
5. 可注册项目
标记编号、重心检测窗、检测时正色/反色的区别
标记形状、外形尺寸、投射有效值、统一性
6. 如无识别用标记,可通过注册用户指定的模板进行标记识别。
7. 使用长尺寸基板对应选购项基板2次传送时,每一次传送时必须有可检测的2处或3处的基板
基准标记(合计4处或6处)。
4. 间隙
请确保各识别标记周围没有导体图案、低温焊
接保护层、标记等其它元件。
此外,该间隙区域的尺寸请设定为大正方形,
其边与识别标记外围距离0.5mm以上。
图 1-2-5-7 识别标记的间隙区域
0.5 mm 以上
0.5mm 以上
间隙区域
识别标记
注意 :
0.5 mm 以上
正方形
中空正方形
菱形 中空菱形
三角形 三角形 中空三角形 倒三角形 中空倒三角形
圆形 中空圆形 格子状(1)
格子状(2)
十字
A 和 C 尺寸 :
0.5~3.0mm±10%以上
B 尺寸:
0.2mm 以上