DECAN_F2_Service(Eng_Ver1).pdf - 第358页
14-18 Fast & Flexible Chip Shooter DECAN F2 Service Manual 7) Assemble in the Y Fame Duct a new Board. Ref The part number of the new Board is EP06-0001 82. 8) When assembling a board, set the board channel to No. 8.…

14-17
Board
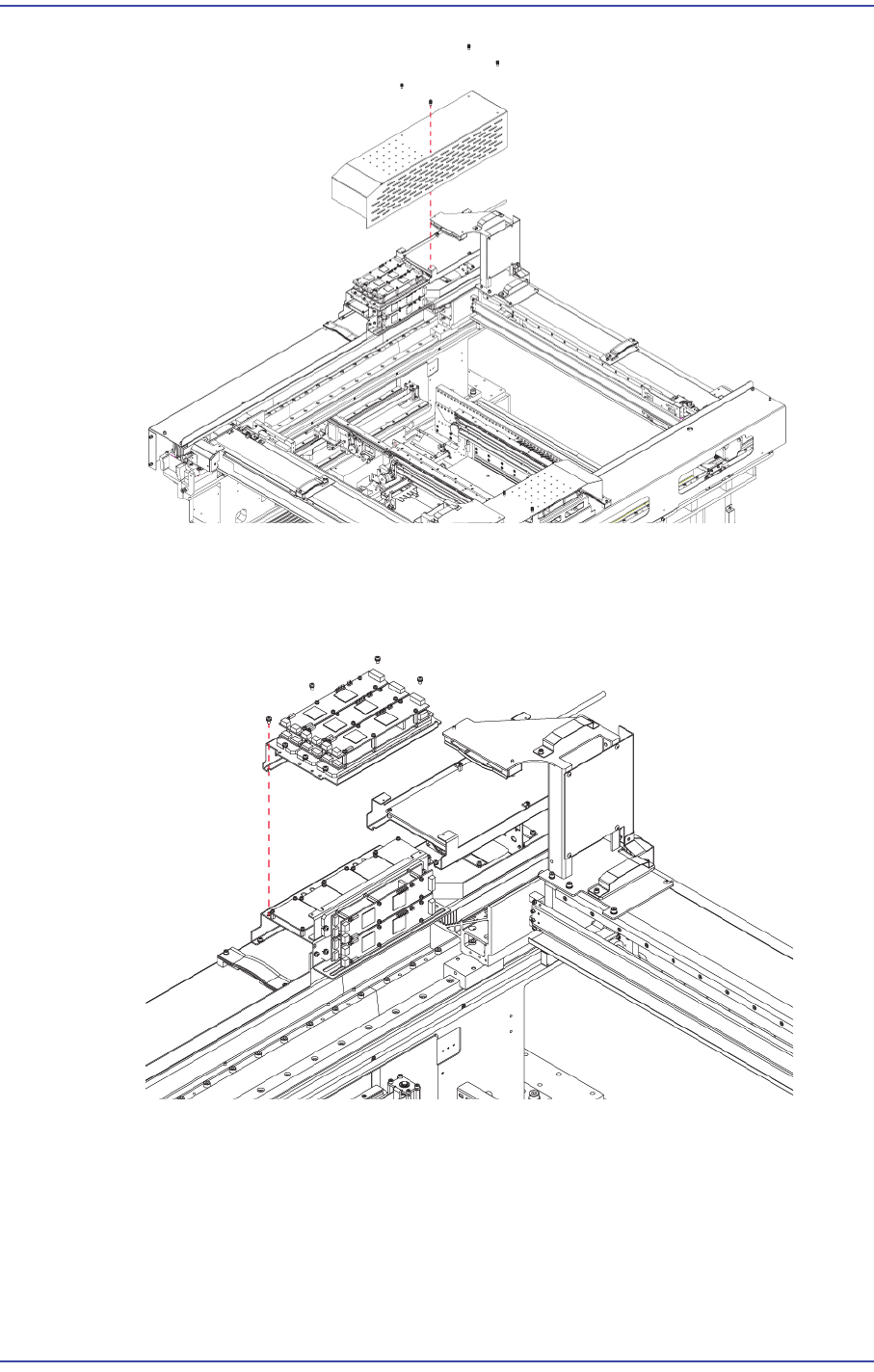
4) Remove the cable connected to the board.
5) Unscrew the fixing bolts(4-M4*8) securing the Z Motor AMP using a wrench and
remove it.
6) Unscrew the fixing bolts(4-M3*6) securing the Step Driver using a wrench and
remove it.

14-18
Fast & Flexible Chip Shooter DECAN F2 Service Manual
7) Assemble in the Y Fame Duct a new Board.
Ref The part number of the new Board is EP06-000182.
8) When assembling a board, set the board channel to No. 8.
14.3.4. 16 Axis Board Replacement Procedure
1) Close the PC as usual and turn off the main switch at the front of the machine.
2) Turn off the main power supply to the machine.
Warning Before servicing the machine, turn off the power switch
located at the front bottom as well as the main circuit
breaker at the rear bottom of the machine. Otherwise,
serious personal injury may occur. Perform servicing with
the power supply to the machine cut off without fail.

14-19
Board
Warning Be sure to wear anti-electrostatic gloves when servicing the
machine.
3) Unscrew the Fastener securing the Cover Driver Y using a wrench and remove it.
4) Remove the cable connected to the board.
5) Unscrew the fixing bolts(6-M3*6) securing the 16 Axis Board using a wrench and
remove it.
6) Assemble in the Y Fame Duct a new Board.